CHARTERED SURVEYORS
LAND & ESTATE AGENTS
PROPERTY CONSULTANTS
DEVELOPMENT AGENTS
LAND PROMOTION

Llancloudy Development Site, Llancloudy, Hereford, Herefordshire

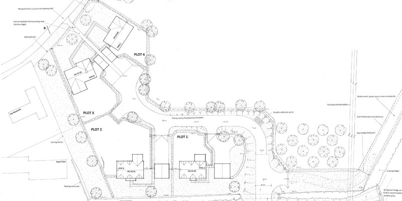
Site Plan
Site Plan DSC0007k DSC0016k DSC0021k Elevations Plot 1 Floorplan Plot 1 Elevations Plot 2 Floorplan Plot 2 Elevations Plot 3 Floorplan Plot 3 Elevations Plot 4 Floorplan Plot 4 Location Plan Llancloudy Development Site

Guide Price:  £400,000

Sold

A superb development site on the edge of the beautiful hamlet of Llancloudy with planning consent for 2 No. detached houses & 2 No. detached bungalows also including a new highways access.


• Superb South Herefordshire location 
• Attractive situation and position on edge of rural hamlet of Llancloudy 
• 4 bedroom & 3 bedroom detached two storey houses with double garages 
• 3 bedroom & 2 bedroom detached bungalows with single garages