The Grange, Marstow, Ross-on-Wye, Herefordshire




























OFFERS IN EXCESS OF £875,000
Sold
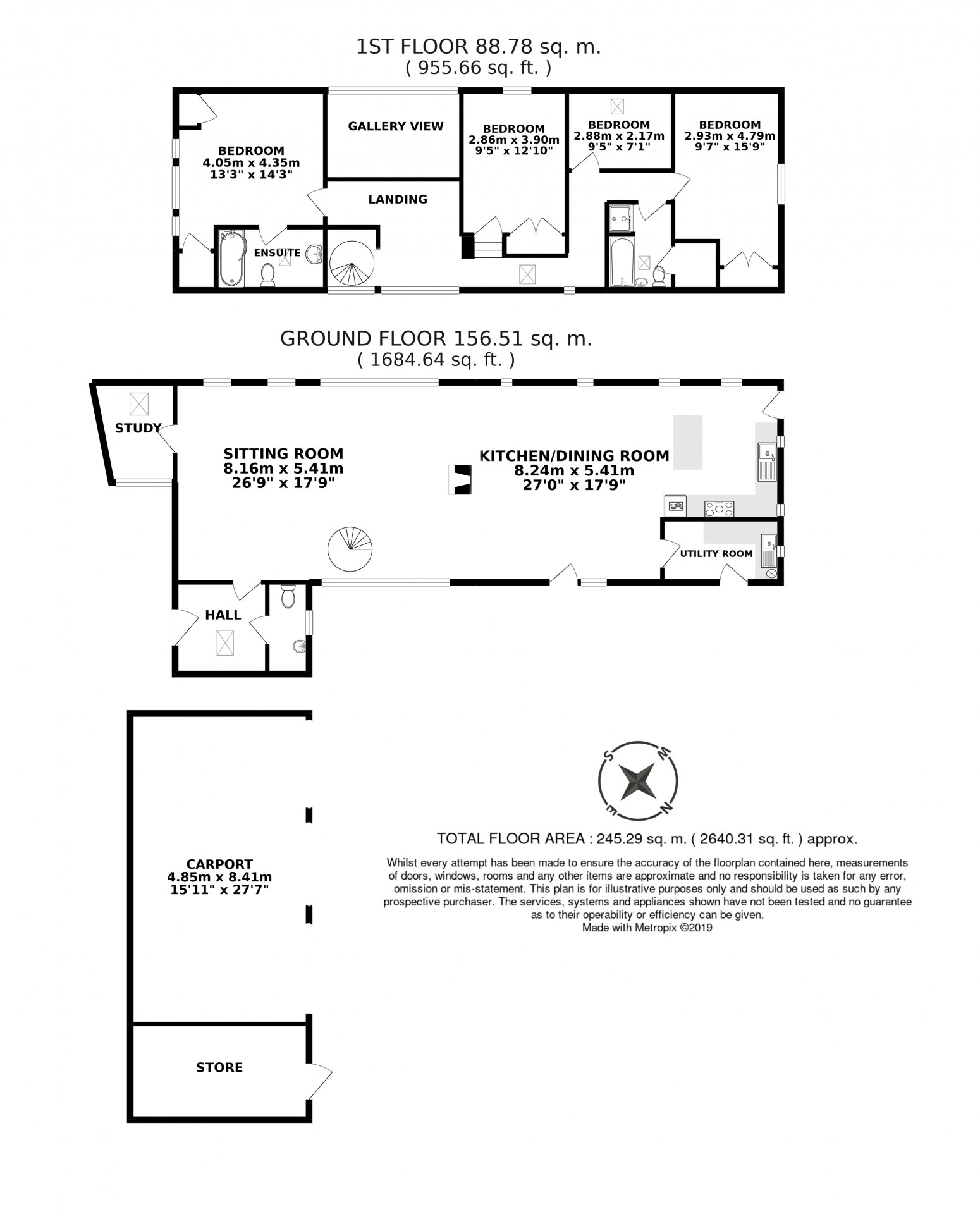
The Grange offers the opportunity to acquire a family home along with 16 acres of land, stables and both indoor and outdoor arenas located between Monmouth and Ross-On-Wye. It is a superb equestrian set up ready to be moved into and enjoyed. The property boasts far reaching views and fantastic accessibility to major cities.